Substantial & Flexible Property with Annex –Bertie Road NW10

  • £950,000
Bertie Road, London, UK
Substantial & Flexible Property with Annex –Bertie Road NW10
Bertie Road, London, UK
  • £950,000

Overview

  • Bungalow
  • Property Type
  • 6
  • Bedrooms
  • 4
  • Bathrooms

Description

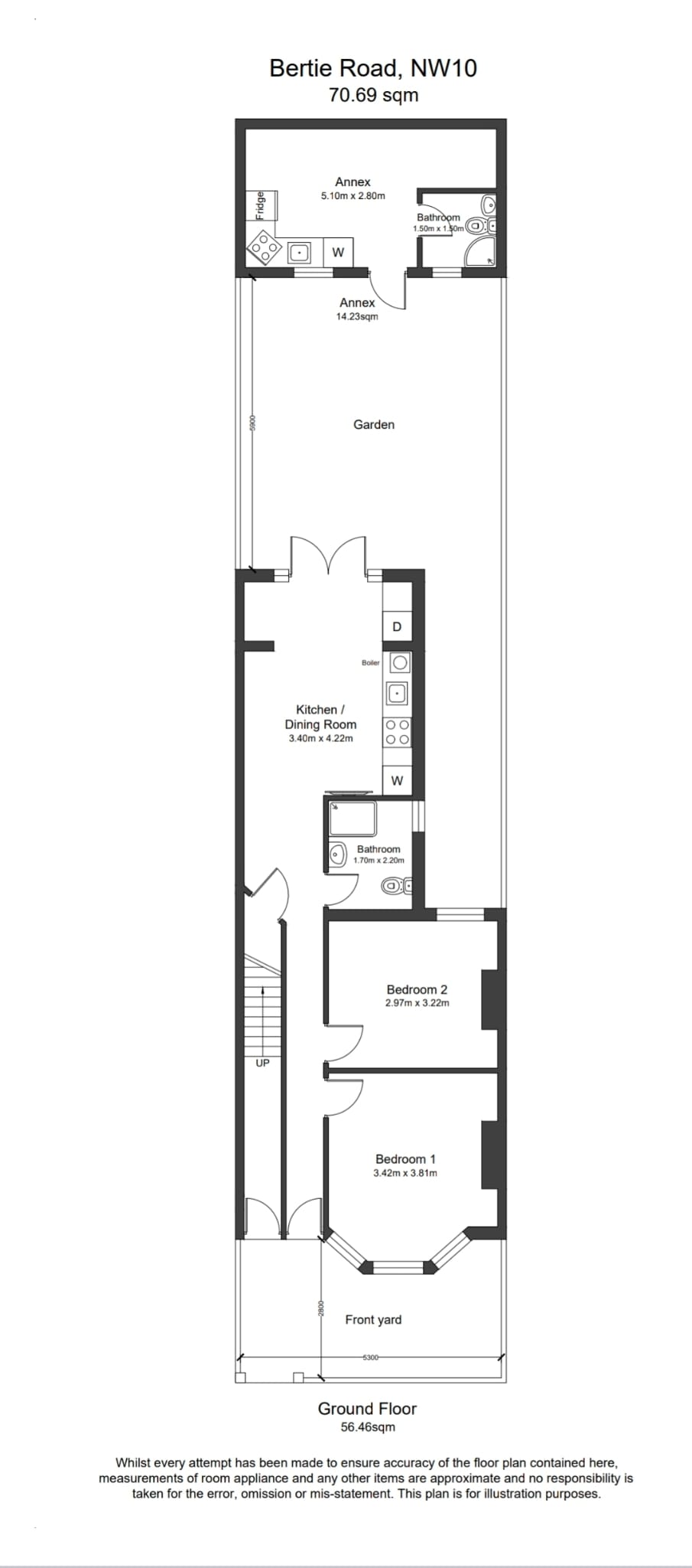
Approx. 120 sq m | 10-Minute Walk to Dollis Hill Station
Situated in a popular and well-connected part of NW10, this spacious and versatile property is located approximately 10 minutes’ walk from Dollis Hill Underground Station, offering excellent access to Central London and surrounding areas.

The property provides approximately 120 sq m of well-utilised internal accommodation, arranged to support a range of living arrangements. The layout includes three shower rooms/toilets in addition to a full bathroom, making it particularly well suited to larger households or shared occupation.

The building has been fitted with a comprehensive fire safety system, including a central fire alarm panel, fire-rated doors, suitable hot water storage systems to meet demand; and a sub-metering system. These features enhance safety, operational clarity, and long-term adaptability, and will be of interest to buyers seeking a property designed to meet modern building and safety standards.

A key highlight is the detached annex, offering flexible additional accommodation suitable for extended family members, guests, home working, or supplementary living space.
The property is currently used as a single dwelling. However, its size, layout, and existing safety infrastructure provide scope for alternative residential arrangements, subject to the purchaser’s own requirements and any necessary consents.

Conveniently located close to local amenities, schools, and transport links, this property represents an excellent opportunity for owner-occupiers, investors, and multi-generational families alike.

Key Features:

Approx. 120 sq m internal area
10-minute walk to Dollis Hill Station
Three shower rooms/WCs plus a full bathroom
Detached annex with flexible use
Fire alarm panel and fire-rated doors installed
Sub-metering system
Well-configured layout with strong adaptability
Popular NW10 residential location

Floor Plans

  • Address Bertie Road, London, UK
  • City London
  • Postal Code NW10
  • Country United Kingdom

Details

Updated on January 5, 2026 at 4:28 pm
  • Price: £950,000
  • Bedrooms: 6
  • Bathrooms: 4
  • Property Type: Bungalow

Additional details

Contact Information

View Listings
Aisha2026

Enquire About This Property

Just fancy finding out
a bit more?

Fill in the form below and one of the team will be in touch to help.

    We empower buyers & sellers to take control of the entire home buying, selling or renting process.

    © 2024 offagent- All rights reserved

    Compare listings

    Compare
    Aisha2026
    • Aisha2026