Broomhill Lodge

  • £425,000
Kilsyth Road, Kirkintilloch, Glasgow, UK
Broomhill Lodge
Kilsyth Road, Kirkintilloch, Glasgow, UK
  • £425,000

Overview

  • Detached
  • Property Type
  • 4
  • Bedrooms
  • 1.5
  • Bathrooms

Description

—On schedule to complete construction for December 2025 with opportunities to select finish choices for tiling, kitchen etc —

A rare opportunity to own a beautifully reimagined home in the heart of Kirkintilloch.

The historic Broomhill Lodge has been carefully redeveloped into a stunning four-bedroom residence, blending period character with modern luxury.

Thoughtfully restored original features sit alongside contemporary finishes, creating a home that is both timeless and practical. Set within one of Kirkintilloch’s most sought-after locations, Broomhill Lodge offers the perfect balance of heritage, comfort, and sophistication.

Broomhill Lodge is perfectly located in the heart of Kirkintilloch, offering residents the best of both worlds.

Set within a peaceful and historic setting, this unique four-bedroom home enjoys stunning views of the Campsie Fells, while being just a short walk from local shops, cafes, and canal-side walks.

Glasgow’s vibrant city centre is only a short drive away, and with excellent schools, parks, and transport links close by, Broomhill Lodge combines timeless charm with modern convenience.

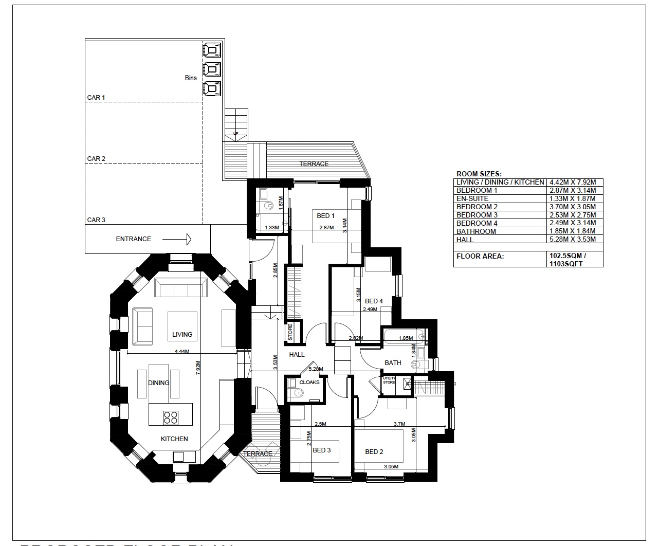
Floor Plans

  • Address Kilsyth Road, Kirkintilloch, Glasgow, UK
  • City Kirkintilloch
  • Postal Code G66 1FF
  • Country United Kingdom

Details

Updated on October 23, 2025 at 9:47 am
  • Price: £425,000
  • Bedrooms: 4
  • Bathrooms: 1.5
  • Property Type: Detached

Contact Information

View Listings
ChrisFPS

Enquire About This Property

Just fancy finding out
a bit more?

Fill in the form below and one of the team will be in touch to help.

    We empower buyers & sellers to take control of the entire home buying, selling or renting process.

    © 2024 offagent- All rights reserved

    Compare listings

    Compare
    ChrisFPS
    • ChrisFPS